Balanční mostek dvojitý VVZ-M2-01
Balanční mostík dvojitý VVZ-M2-01
Bezúdržbový kombinovaný balanční mostík s HPL protiskluzovými nášlapy zavěšenými na polyesterových lanech je herním prvkem, díky kterému děti trénují svou koordinaci, stabilitu a rovnováhu. Vyroben je ze žárově zinkované oceli, která je upravena práškovou vypalovanou barvou. Lana jsou vyrobena z polyesterových vláken, která jsou vinutá kolem středu. Tato konstrukce lana zvyšuje jeho pevnost a odolnost proti mechanickému namáhání. Polyester má mnoho kladných vlastností – je odolný vůči mikroorganismům, povětrnostním vlivům, rychle schne po dešti, je stálobarevný a vyznačuje se vysokou pevností. Spojovací materiály jsou nerezové. Jako dopadovou plochu lze použít travnatý povrch, doporučujeme však zatravňovací rohož.
SPECIFIKACE:
Balanční mostík dvojitý VVZ-M2-01 je certifikován podle normy STN EN 1176
Věková kategorie: 3 - 14 let
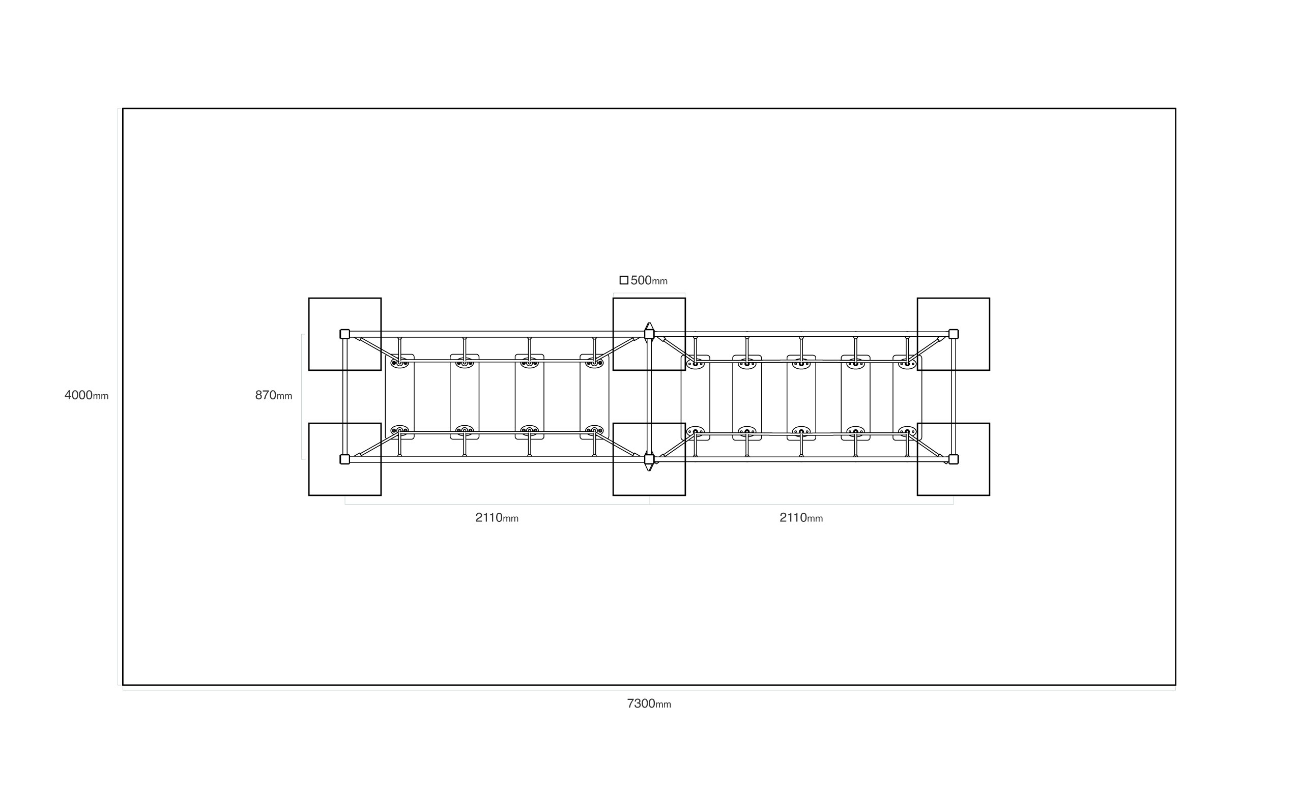
Rozměry prvku: 4,3 × 0,9 × 1,3 m (DxŠxV)
Výška volného pádu: do 0,5 m
Dopadová plocha: 7,3 × 4,0 m (v souladu s normou STN EN 1177)
Materiál: Žárově zinkovaná ocel, HPL, polyesterové lano, nerezový spojovací materiál

HPL - Vysokotlaké lamináty

Trénování rovnováhy

Ano dopravu zajišťujeme po celém Česku.
Každý prvek v naší nabídce je dostupný „na klíč“, ale v případě zájmu a šetření rozpočtu Vám umíme poskytnout výkres základů a montáže abyste si prvky uměli osadit i sami.
Všechny naše prvky v nabídce prošly kontrolou Technické inspekce a.s., podle příslušné normy, což dokazují i certifikáty které můžete najít na webu u každého produktu. Přestože jsou všechny naše výrobky schváleny Technickou inspekcí a.s., nejpřísnějšími kontrolory jsou pro nás ti, kteří se na cestu za zábavou vydají – a nejsou to jen děti.
Naše produkty jsou navrženy, vyvinuty, testovány a vyrobeny u nás v naší hale v Trenčíně.
Samozřejmě, obchodníci jsou zde připraveni pro Vás. Který obchodník je pro Vaši obec naleznete na této mapě.
Standardní doba dodání je 4 až 6 týdnů od zadání objednávky.
































.png&w=200&h=200)















